Nicosia, Cyprus

Architects: Fokialis Evangelos. Kolokoudia Georgia, Pyliotis Alkiviadis
Supervisors: Kourkoulas Andreas, Vozani Ariadni, Pagonis Thanos
Location: Nicosia, Cyprus
Project Year: 2016
Type: Educational Project, Urban Design
Main Idea
Each city is a complex system of variables, since it is a living organism that is constantly evolving. The alleged elimination of zone buffer transforms the city of Nicosia into a more complicated system. Two cities, two different cultures are invited to overcome the limit and create together a new single city. To intervene in this highly sensitive and fragile environment we felt the need to study the city in its whole and through our proposal to contribute to this consolidation.
Analysis diagramms

Confines- The Enetian Walls- The Buffer Zone

Density Today - Dense in the historical centre - Sparse outside of the walls

Our intention - Sparse in the historical centre - Dense outside of the walls
Strategic proposal for the entire city

1st Step: Definition of the new, united and expanded centre


The vision

_Design of a linear axis at the intersection the two thresholds
_Reset of a vital axis that existed before the separation of Nicosia
_Linear Intervention and urban densification diametrically of the existing municipal building units of Nicosia
Map of strategical intervention

Flow Diagramm

Designing the axis

_Linear axis reinforcement
_Proposal for a united front in order to intensify the visual stimuli to the historic center
_Axis conclusion in the moat and through this entrance to the historic center
_Shaping the moat as a public park
_Directions for future building densification
_Mixed-use at both sides of the axis
Block unit concept idea

_ Intention for a building design that is consistent with the dynamic gesture of the central idea and able to respond to the changing needs of the city
_ Research and analysis of the needs and the requirements
_ Design of typologies characterized by their permeability, functionality and based on archetypical structure to offer the possibility of habitation and use of internal and semi-outdoor spaces
_ Typologies standardization capability for lower cost and maximum volatility of the buildings total
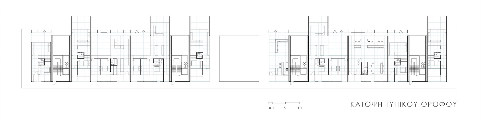
Architectural Drawings



Architectural Models
Scale 1:1000



Scale 1:200





Scale 1:100




3D architectural visualization





