
Architects: Pyliotis Alkiviadis, Evangelos Fokialis
Supervisors:Tsiraki Sofia, Karadimas Konstantinos
Location: Peiraios Street Tauros, Athens Greece
Area: 2.450 m^2
Project Year: 2015
Project Type: Educational
The Topos

Approaching the design of a theater school from the beginning, we sought a balance between its relationship with the city, which suggests that the school, being a public building, should be made open and available, and the introversion necessary for the understanding of theater philosophy. The study of the site identified three different conditions that should be takes into consideration. The noisy Piraeus Avenue in the East, a quiet neighborhood in the Southwest and an unoccupied space – in fact a park yet to be developed - in the Northwest.
Main Idea
Composing the theater school’s central idea involved many parameters; the balance between public and private space, the incorporation of the building complex into the site, the formulation of different and distinctive borders in each of these three conditions and simultaneously corresponding to the specific requirements of a theater school. A linear, tall building and a robust wall, which serve as structural elements, bring together the administrative and the public spaces of the school, cutting off direct contact with Piraeus Avenue.
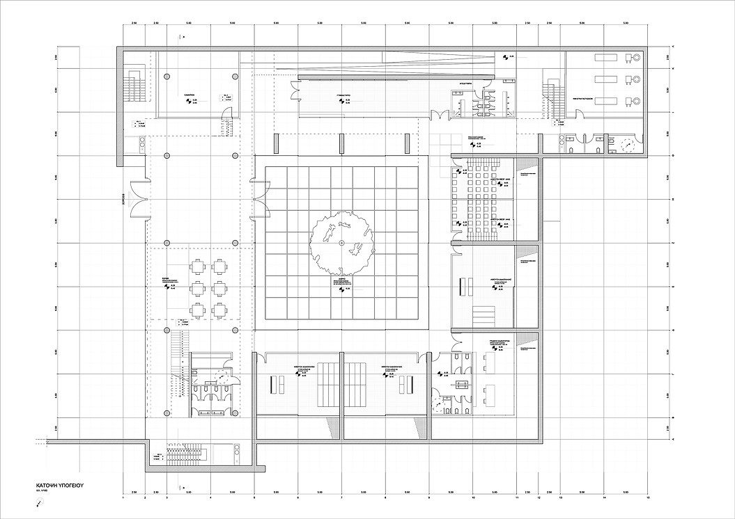
A halfway submerged gamma-shaped building, where the main rooms of the theater studies are located, is stationed near the border of the neighborhood. This building, in conjunction with the theater towards the boundary of the park, form a central atrium-like space, which operates as the very core of the school. At the same time, the theater rises, disrupted from the ground, allowing a “controlled” merging of the square with the core of the school.
The courses that have been designed and the wall of the halfway submerged building connect the park with the lowest level of the school, in this manner creating a public, open-air amphitheater. A decisive gesture, as the outdoor amphitheater functions both as a means of transition and a boundary between the introverted patio –the social capacitor of the school- and the city, represented by the public square.
The reciprocal relationship between the city and the theater school is distinct. These two elements interact with each other and can operate either as a single system, either as two separate, independent of one another. The different management of each one of the site’s antithetical borders the positioning of the school’s core lower than the level of the city of the school’s core in relation to the city and the handling of movements as a means of incorporating the subject into the site, make up the underlying idea of the theatrical schooThe reciprocal relationship between the city and the theater school is distinct. These two elements interact with each other and can operate either as a single system, either as two separate, independent of one another. The different management of each one of the site’s antithetical borders the positioning of the school’s core lower than the level of the city of the school’s core in relation to the city and the handling of movements as a means of incorporating the subject into the site, make up the underlying idea of the theatrical school in Taurus.
Architectural Model (scale 1:100)






Architectural Drawings







3D Visualization
